Складское помещение
Заречная, 153 корп. 5 Показать на карте
Заречная, 153 корп. 5 Показать на карте
Щелково
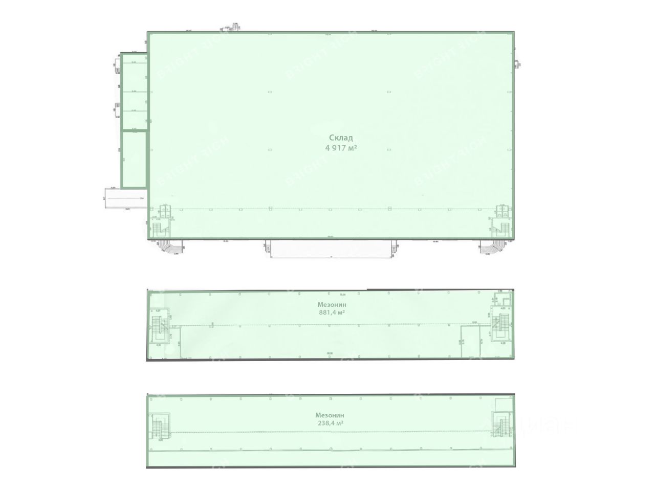
Лот 509343 Предложение от Собственника! Сдаётся в аренду отапливаемый склад площадью 3154 м2 в складском комплексе класса А. Помещения склада 1 этажа - 2505 м2, 2 этаж АБК - 440 м2, 3 этаж - 209 м2 (мезонин). Высота потолков 12.5 м2, полы с антипылевым покрытием, система дымоудаления, система пожаротушения и оповещения, шаг колонн 18 на 24 м, дебаркадер, подъёмно-поворотные ворота с докшелтерами и доклевеллерами 3 шт и одни ворота на нулевом уровне, круглосуточная охрана, паркинг. Высота до низа несущих конструкций - 12.5 м, подъёмно-поворотные ворота размером 3 на 3 м, оборудованные механическим и электрическим электроприводом, с доклевеллерами и докшелтерами. Дебаркадер, встроенный в корпус на высоте пола 1.2 м от прилегающей площади. Фасады из металлических сэндвич-панелей, толщиной 150 мм с утеплителем из минераловатных плит. Колонны сборные железобетонные, сечением 600 на 400 мм. Полы монолитные железобетонные с обеспылевающим упрочняющим покрытием и полезной нагрузкой 8 тонн на кв.м. Кровля мембранная, утепленная минераловатными плитами толщиной 200 мм с внутренним уклоном и внутренним организованным водостоком. Естественная вытяжная вентиляция через зенитные фонари. Система дымоудаления. Система водяного пожаротушения. Система уведомления о пожаре. Теплые полы. Помещение для зарядки аккумуляторов складской техники. В цену включено: НДС 20%. В цену не включено: затраты на электричество, коммунальные расходы. Обеспечительный платеж 2 месяцa.Чтобы получить ПОДРОБНУЮ ПРЕЗЕНТАЦИЮ С ПЛАНИРОВКОЙ И ФОТОГРАФИЯМИ, звоните или отправьте свой email и номер телефона в сообщении на портале. Высылаем в течение 15 минут по запросу! Конт. лицо: Алексей Юрьевич, доб. 118, ЛОТ 509343
3154 м2
- Показать контакты
- Добавить в избранное
3154 м2
3 111 958 /мес.
987 /м2
