сдам складское помещение, Заречная, 153 корп. 58 185 901 ₽ в месяц
29 ноя
Дата публикации объявления
Обн. 3 фев
Дата обновления объявления
2
Количество просмотров (+ просмотры за сегодня)
1356 ₽/м² в месяц
Параметры
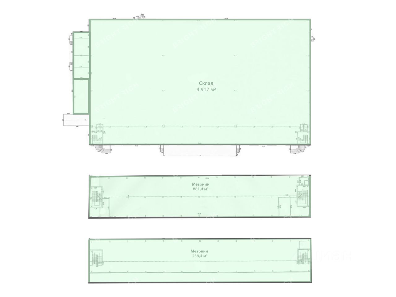
Общая площадь6036,8 м2
Этаж1
Год постройки2019
Складское помещение 6 036.8 кв. м в ''Технопарк Щелково''. Объект скоро освободится. Успейте забронировать на выгодных условиях. Готовность ко въезду уточняется по запросу.
Направление: Восток. Шоссе: Фряновское, Щелковское. Расстояние от МКАД: 18 км.
Характеристики: - Класс: A, - Ограничения по электроэнергии: 250 кВт, - Тип склада: Сухой склад, - Высота потолков: 12.5 м, - Нагрузка на пол: 8 т/ кв.м, - Система пожаротушения: Спринклерная, - Тип пола: С антипылевым покрытием, - Пожарная сигнализация: Да, - Уровень пола: 1.2 м, - Интернет-провайдеры: Билайн, - Шаг колонн: 18x24 м.
Арендная ставка: 16 267.2 руб./кв. м в год.
Складское помещение 6 036.8 кв. м в ''Технопарк Щелково''. Объект скоро освободится. Успейте забронировать на выгодных условиях. Готовность ко въезду уточняется по запросу.
Направление: Восток. Шоссе: Фряновское, Щелковское. Расстояние от МКАД: 18 км.
Характеристики: - Класс: A, - Ограничения по электроэнергии: 250 кВт, - Тип склада: Сухой склад, - Высота потолков: 12.5 м, - Нагрузка на пол: 8 т/ кв.м, - Система пожаротушения: Спринклерная, - Тип пола: С антипылевым покрытием, - Пожарная сигнализация: Да, - Уровень пола: 1.2 м, - Интернет-провайдеры: Билайн, - Шаг колонн: 18x24 м.
Арендная ставка: 16 267.2 руб./кв. м в год.
Финансовые условия: - В стоимость включено: OPEX, НДС, - Оплачивается отдельно: Коммунальные услуги, Электроэнергия, - Налог: Включая НДС.
Без комиссии и скрытых платежей для арендатора.
Готовы оперативно организовать просмотр в удобное время, предоставить PDF-презентацию и план.
Точное местоположение объекта можно найти по данным координатам: 55.923634,38.040661