Если цена в объявлении изменится, мы сразу сообщим вам об этом на электронную почту.
Нажимая «Подписаться», вы соглашаетесь с правилами.
продам 3-к, Комсомольская, 29 800 000 ₽
29 июля
Дата публикации объявления
Обн. 28 сен
Дата обновления объявления
1
Количество просмотров (+ просмотры за сегодня)
144 118 ₽/м²
Чистая продажа
Термин "Чистая продажа" означает, что в квартире никто не прописан или
есть куда выписаться и вывезти вещи. Это лучший вариант для покупателя.
Вероятность срыва сделки минимальна.
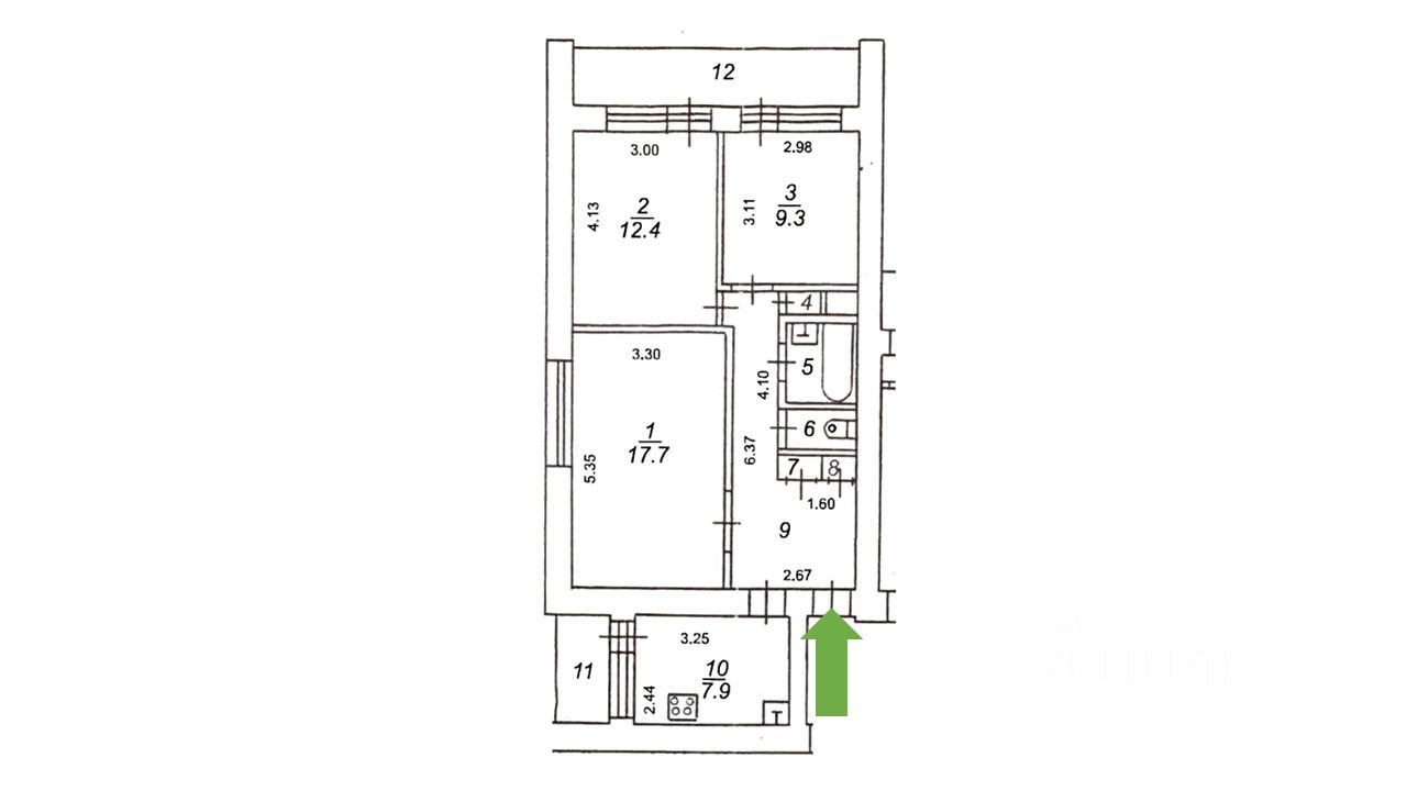
Уважаемые покупатели, Вашему вниманию в покупку предлагается отличной планировки 3-ёх комнатная квартира в центре города Щёлково!
Квартира после качественного ремонта. Комнаты изолированные, просторный коридор, раздельный санузел. Есть 2 лоджии, площадью 7 кв.м и 2 кв.м. Высота потолков 2,7 м. Общая площадь без учёта лоджий составляет 63,2 кв.м. Тёплый кирпичный дом, прекрасная шумоизоляция. Есть 2 лифта грузовой и пассажирский. С парковкой проблем нет.
Вся инфраструктура в шаговой доступности: школы, сады, поликлиника/больница, магазины, торговый центр, гипермаркет Глобус, рынок со свежими фермерскими продуктами, пункты ПВЗ и многое другое.
Неспешным шагом можно дойти до парков и набережной для прогулок или занятия спортом.
Уважаемые покупатели, Вашему вниманию в покупку предлагается отличной планировки 3-ёх комнатная квартира в центре города Щёлково!
Квартира после качественного ремонта. Комнаты изолированные, просторный коридор, раздельный санузел. Есть 2 лоджии, площадью 7 кв.м и 2 кв.м. Высота потолков 2,7 м. Общая площадь без учёта лоджий составляет 63,2 кв.м. Тёплый кирпичный дом, прекрасная шумоизоляция. Есть 2 лифта грузовой и пассажирский. С парковкой проблем нет.
Вся инфраструктура в шаговой доступности: школы, сады, поликлиника/больница, магазины, торговый центр, гипермаркет Глобус, рынок со свежими фермерскими продуктами, пункты ПВЗ и многое другое.
Неспешным шагом можно дойти до парков и набережной для прогулок или занятия спортом.
До жд станции Щёлково или Воронок 20 минут на маршрутке (остановка рядом с домом). Также можно дойти пешком до станции Воронок за 20-25 минут.
Свободная продажа, полная стоимость в договоре, прописанных нет, без обременений и долгов. Звоните отвечу на Ваши вопросы!