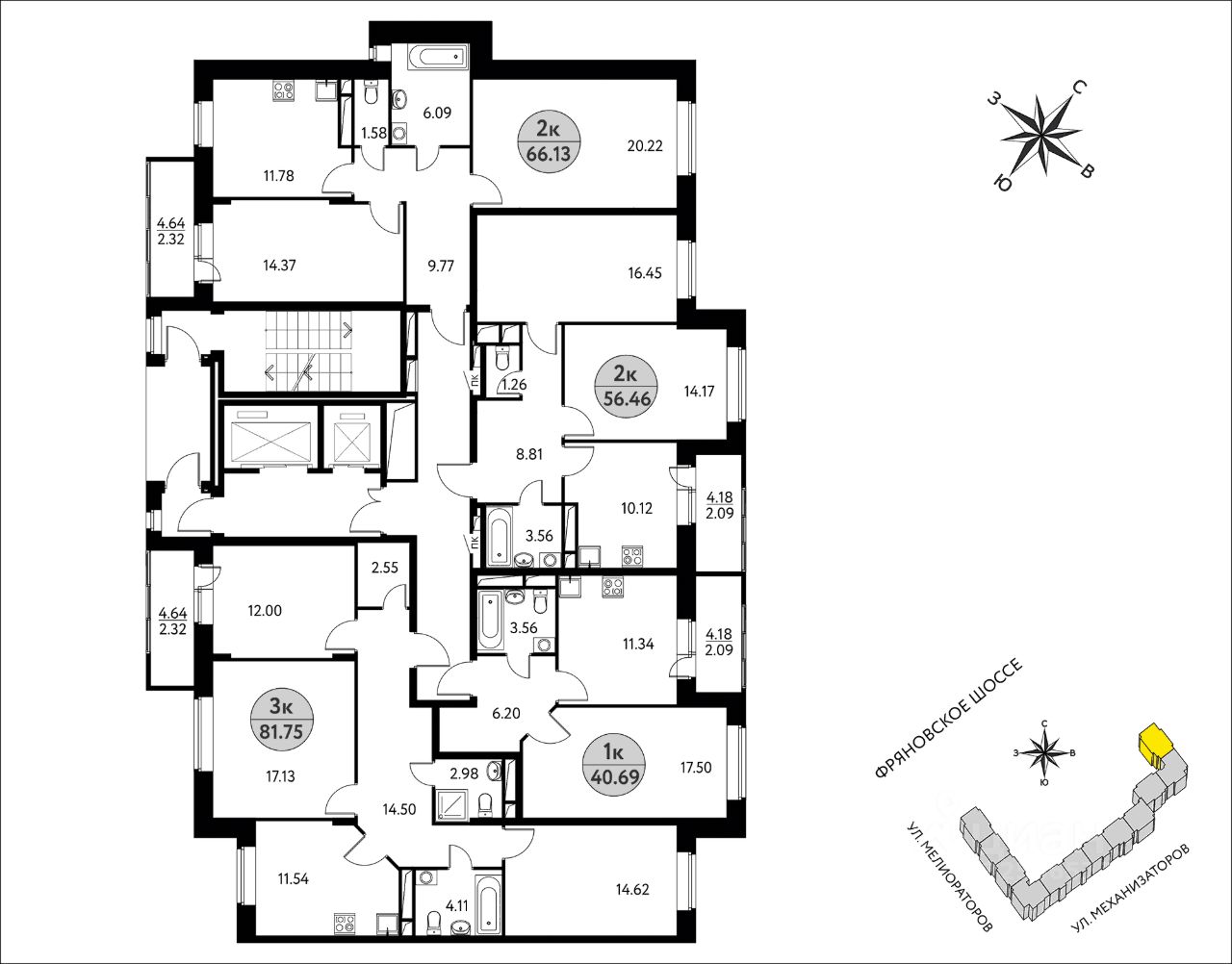
2-к, Полевая, 4а Показать на карте
Щелково
Продажа от застройщика, без доп. наценок и скрытых комиссий! Квартира в новом ЖК ''Дом на Сиреневой''. О ПРОЕКТЕ: Дом с переменной этажностью: 13 - 17 этажей. Гармонично расположен между Щелковским лесопарком и промышленным районом города с развитой инфраструктурой. Идеальный вариант принципа work-life balance все для работы и отдыха.Продуманная инженерия, авторский дизайн входных групп, квартиры удобных и разнообразных планировок, качественные современные лифты, детские и спортивные площадки с каучуковым покрытием.УДОБНОЕ РАСПОЛОЖЕНИЕ: От ЖК ''Дома на Сиреневой'' удобно добираться до центра Щелково и до Москвы. Ближайшая ж/д станция Воронок находится в 22 минутах ходьбы. В шаговой доступности расположено все, что нужно для комфортной жизни: школа, несколько детских садов, магазины, аптеки, почта, банк, салоны красоты и центры бытовых услуг.БЛАГОУСТРОЙСТВО: Дом на Сиреневой предусматривает индивидуальный проект по развитию микрорайона с современной архитектурой, благоустроенными зонами отдыха и спортивными площадками. Рядом с домом есть остановка общественного транспорта. В шаговой доступности детские сады 5, 14, 22 и Средняя общеобразовательная школа 3, а также крупнейший в городе гипермаркет ''Глобус'', аптеки, почта, банк, салоны красоты и центры бытовых услуг.
66 м2
2 / 17 этаж
Кирпич - монолит
- Показать контакты
- Добавить в избранное
66 м2
2 / 17 этаж
Кирпич - монолит
10 381 600
156 538 /м2
Новостройка,
дом сдан
дом сдан
