3-к, Строителей, 14а Показать на карте
Щелково
Комплекс располагается в центре г. Щёлково на ул. Центральная.Социальная инфраструктура: в пешей доступности находятся детские сады и школы.Коммерческая инфраструктура: рядом с жилым комплексом расположены продуктовые супермаркеты, салоны красоты и кафе.Спортивная инфраструктура: в 3 минутах ходьбы от жилого комплекса расположен физкультурно-оздоровительный комплекс, футбольное поле, волейбольный корт, хоккейная коробка с теплой раздевалкой, рампы для скейтбординга.В одной минуте ходьбы от ЖК расположен городской парк с благоустроенным пляжем.ЖК представляет из себя монолитно-кирпичный дом с закрытой придомовой территорией, видеонаблюдением и охраной.Особенности ЖК:- Шумозащитные стеклопакеты- 3 лифта на этаже- Закрытая охраняемая территория- Двор без машин- Современные игровые площадки для детей- Собственная торговая галерея
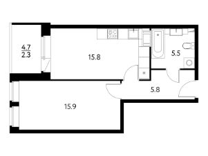
85 м2
4 / 17 этаж
Монолит
- Показать контакты
- Добавить в избранное
85 м2
4 / 17 этаж
Монолит
16 157 050
189 726 /м2
Новостройка,
дом сдан
дом сдан
