1-к, Соболевка ЖК, 7 Показать на карте
Щелково
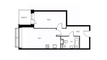
Продаётся 1-комнатная квартира в строящемся доме (Дом 7), срок сдачи: II-кв. 2025, общей площадью 41.83 кв.м., на 7 этаже. Жилой комплекс ''Соболевка'' расположен непосредственно в городской черте подмосковного города Щелково, в восточной его части, рядом со старым парком, в излучине реки на правом берегу Клязьмы. Проектом предусмотрено строительство 15 жилых домов разной этажности, общей площадью более 166 тыс. кв.м. Численность населения комплекса составит 5 964 тыс. жителей. Квартиры в ЖК ''Соболевка'' со свободной планировкой - квартиры нового формата жизни, которые дают возможность воплощать в жизнь самые смелые дизайнерские идеи и интерьерные решения. Главным плюсом такого жилья является то, что Вы можете зонировать пространство по своему усмотрению.
41 м2
7 / 17 этаж
Кирпич - монолит
- Показать контакты
- Добавить в избранное
41 м2
7 / 17 этаж
Кирпич - монолит
6 065 350
145 000 /м2
Новостройка,
дом сдан
дом сдан
