Если цена в объявлении изменится, мы сразу сообщим вам об этом на электронную почту.
Нажимая «Подписаться», вы соглашаетесь с правилами.
продам 2-к, Циолковского, 67 000 000 ₽
5 июля 2025
Дата публикации объявления
Обн. 22 июля
Дата обновления объявления
120 690 ₽/м²
Чистая продажа
Термин "Чистая продажа" означает, что в квартире никто не прописан или
есть куда выписаться и вывезти вещи. Это лучший вариант для покупателя.
Вероятность срыва сделки минимальна.
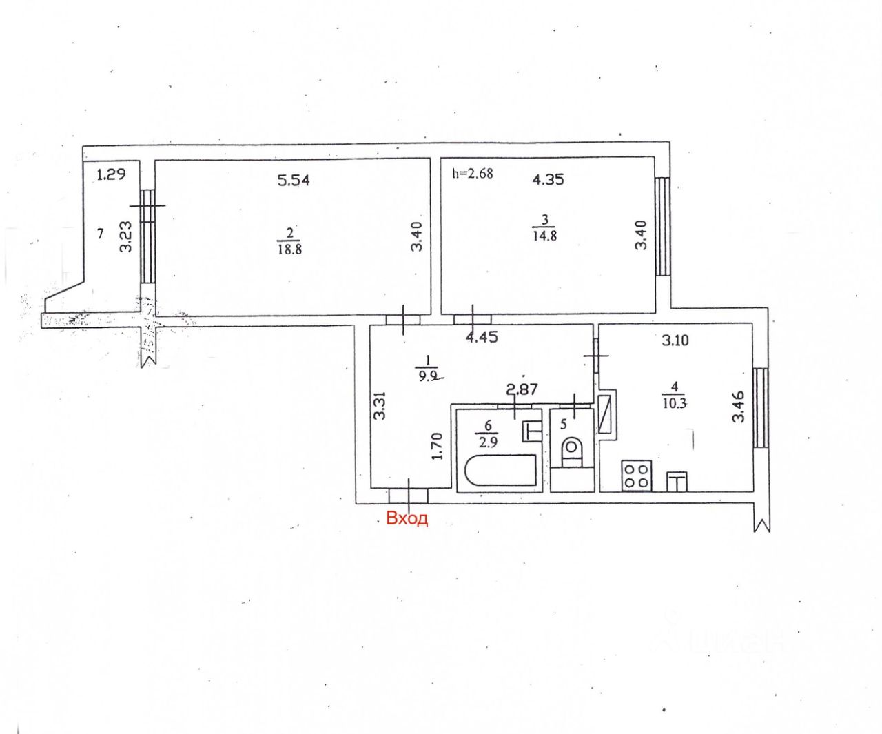
КВАРТИРА ПОД АВАНСОМ двухкомнатная квартира 58 кв.м на втором этаже 12-ти этажного дома 1992 года постройки. Квартира в хорошем состоянии: комнаты на две стороны изолированные 19 + 15 кв.м, кухня 10 кв.м., холл 10 кв.м. Санузел раздельный, лоджия остеклена, отделана. Укомплектована мебелью и техникой можно въезжать и жить. Отдельный запираемый холл на 4 квартиры, грузовой и пассажирский лифты. Дом расположен в центре микрорайона Чкаловский. Рядом с домом школа, два детских сада, детские площадки, универсамы, продуктовый рынок озеро, парк.
Один взрослый собственник. Обременений нет. Свободная продажа. Никто не зарегистрирован и не проживает.
КВАРТИРА ПОД АВАНСОМ двухкомнатная квартира 58 кв.м на втором этаже 12-ти этажного дома 1992 года постройки. Квартира в хорошем состоянии: комнаты на две стороны изолированные 19 + 15 кв.м, кухня 10 кв.м., холл 10 кв.м. Санузел раздельный, лоджия остеклена, отделана. Укомплектована мебелью и техникой можно въезжать и жить. Отдельный запираемый холл на 4 квартиры, грузовой и пассажирский лифты. Дом расположен в центре микрорайона Чкаловский. Рядом с домом школа, два детских сада, детские площадки, универсамы, продуктовый рынок озеро, парк.
Один взрослый собственник. Обременений нет. Свободная продажа. Никто не зарегистрирован и не проживает.
Транспорт: для личного авто большая стоянка у дома, общественный - пять минут пешком до автобусной остановки (17 км. от МКАД) или 10 мин. пешком до ж/д платформы Чкаловская (до Ярославского вокзала, экспрессом - 45 мин).