сдам универсальное помещение, Супруна, 1а170 000 ₽ в месяц
8 мая 2025
Дата публикации объявления
Обн. 8 мая 2025
Дата обновления объявления
9
Количество просмотров (+ просмотры за сегодня)
1050 ₽/м² в месяц
Параметры
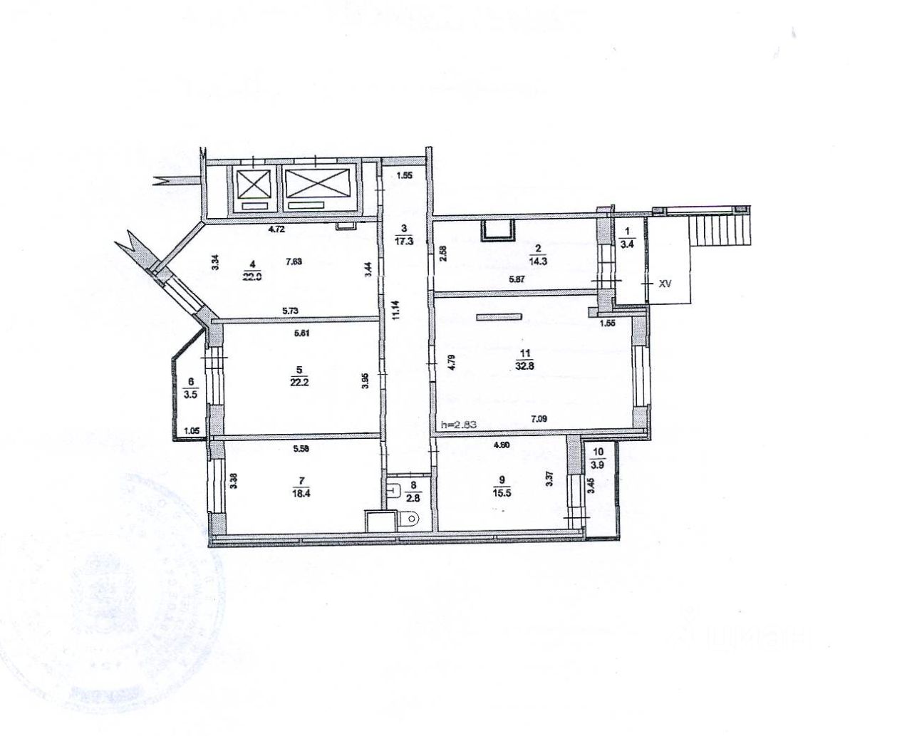
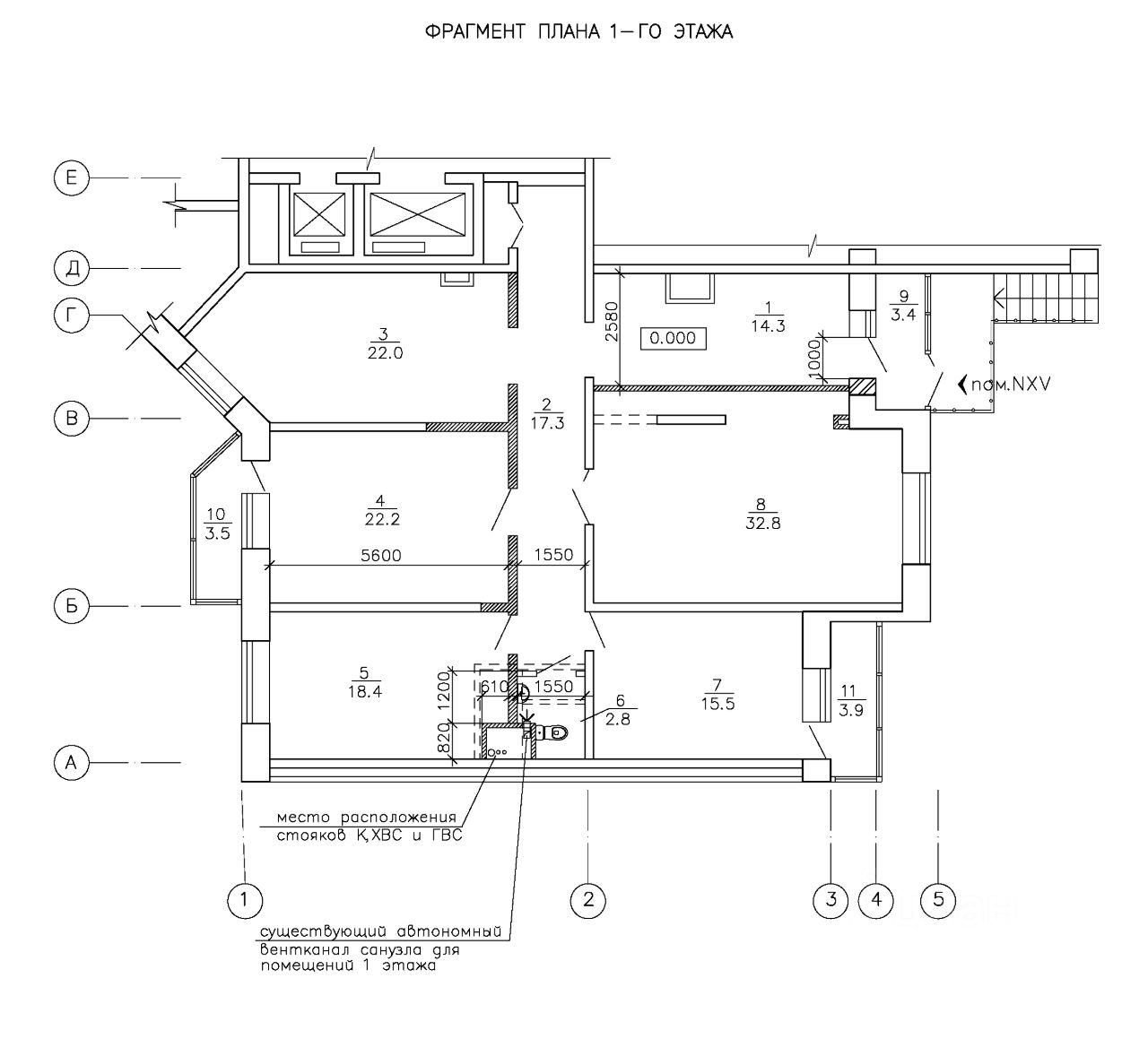
Общая площадь161,8 м2
Этаж1
Предлагается в аренду помещение свободного назначения расположенное в 18 км. от МКАД по Щелковскому шоссе- г. Щелково, мкр. Щелково-3, ул.Супруна, дом 1А. Общая площадь 161,8 м.кв. Помещение разделено на закрытые корнеры ( кабинеты) от 18 до 32 м2. Возможна перепланировка с объединением части площадей и устройством торгового зала. До мая 2025 г. арендовал детский учбно-развивающий центр. Предпочтительно использование под торговлю продуктами, товарами повседневного спроса, услугами. Помещения расположены на 1-ом этаже нового 16 эт. многоподъездного монолитного дома. В доме более 200 квартир и он находится в уже сложившейся застройке, при этом имеет обустроенную территорию. Помещения на первой линии с возможностью размещения хорошо заметных информационных витрин, рекламы.
Предлагается в аренду помещение свободного назначения расположенное в 18 км. от МКАД по Щелковскому шоссе- г. Щелково, мкр. Щелково-3, ул.Супруна, дом 1А. Общая площадь 161,8 м.кв. Помещение разделено на закрытые корнеры ( кабинеты) от 18 до 32 м2. Возможна перепланировка с объединением части площадей и устройством торгового зала. До мая 2025 г. арендовал детский учбно-развивающий центр. Предпочтительно использование под торговлю продуктами, товарами повседневного спроса, услугами. Помещения расположены на 1-ом этаже нового 16 эт. многоподъездного монолитного дома. В доме более 200 квартир и он находится в уже сложившейся застройке, при этом имеет обустроенную территорию. Помещения на первой линии с возможностью размещения хорошо заметных информационных витрин, рекламы. Обеспечен подъезд на автомобиле к входу. Гостевая парковка. Входная группа оборудована пандусом. Установлены системы кондиционирования. Телефония, интернет. Договор аренды от собственника. Коммуналку оплачивает арендатор. Готовы предоставить любую дополнительную информацию. Без комиссии для арендатора. Оперативный показ.